24小時檢測量1000
- 6000管
支持20:1.10:1混采檢測
銳途醫療移動核酸快檢車采用依維柯底盤改裝而成,可以實現現場采樣、現場檢測、現 場出結果,車輛抵達現場后2分鐘即可完成部署,可以做到隨到隨采,隨采隨檢。
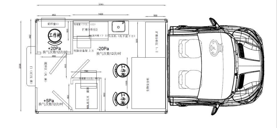
車輛分為核酸采樣區、檢測擴增分析區兩個區域,可以定制洗消區。每臺車24小時可以實現 1000 - 6000管的單檢,支持20:1、10:1混采檢測,46分鐘即可出結果,實驗過程中僅需1人即可 完成操作,極其適合社區、**、車站、碼頭、機場等社會公共場所駐點檢測。
產品特點
◎高通■: 1000-6000管(24 小時)
◎全自動檢測;檢測時間46min,檢測速度快,實現了隨到隨檢
◎車載管理系統、輕量化全自動LIS系統與**/實驗檢測室無縫對接人力需求少,每車配置3-7人 ◎多功能:新冠病毒、呼吸道宀,原體、泌尿生殖系統、腸道病毒、血液傳播疾病、食源性疾病................. .....
◎適用于社區、**、車站W多種場景,C1照即可駕駛,無需特殊駕照,每車3人即可操作
◎滿足“P2+”實驗室要求
車內布局

細節展示

設備清單
6米快檢核酸檢測車24小時6000管設備清單
|
序號 |
設備 |
品牌 |
型號 |
單位 |
數量 |
|
1 |
6米藍牌核酸檢測車 |
程力 |
咪 |
臺 |
1 |
|
2 |
生物安全框-惡雙人 |
博科 |
11228BBC86 |
臺 |
1 |
|
3 |
核酸快速檢測全舍動PCR分-系 統 |
天隆 |
48E |
臺 |
2 |
|
4 |
圖形可旋轉匸降座椅 |
程力 |
定司 |
個 |
4 |
|
5 |
全消毒革通道=調移液器 |
大龍 |
10-50 ML |
1 |
|
|
6 |
全消毒w動日通道移液器 |
大龍 |
10-100 ML |
把 |
2 |
|
7 |
移液器支架 |
大龍 |
線性色 |
套 |
1 |
|
8 |
混勻儀 |
大龍 |
MX-M |
臺 |
1 |
|
9 |
離心機 |
大龍 |
D1008 |
臺 |
1 |
|
10 |
冰箱 |
漠柯想 |
YCD-265 |
臺 |
1 |
|
13 |
電纜線(軟罰5芯國標) |
程力 |
.定制 |
米 |
15 |
|
14 |
超低溫跡護-低溫地區適用 |
程力 |
項 |
1 |
|
|
15 |
UPS (支持三W、實驗設備W轉 3。分鐘以二) |
佃童 |
.定制 |
套 |
1 |
|
16 |
UPS能源管理系統 |
仙童 |
宅制 |
套 |
1 |
|
17 |
UPS鋰電池簇匸度電) |
仙童 |
定乏 |
千瓦時 |
1 |
|
18 |
M輸服務(輸■入公里數) |
車隊 |
車隊 |
公圭 |
1000 |
|
19 |
培訓,備案、驗收服務 |
程力 |
?程力 |
項 |
1 |
|
20 |
技宗人員差旅 |
趕力 |
程力 |
項 |
1 |








在線咨詢
聯系人:
手機:
地址:湖北省隨州市南郊程力汽車工業園
